Real Estate in Florence, House For Sale, Real Estate for sale, Property for rent

Reference T5771

 View the complete gallery

Description

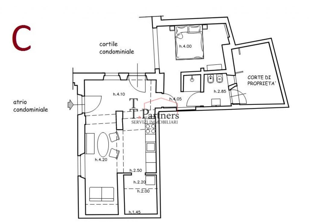
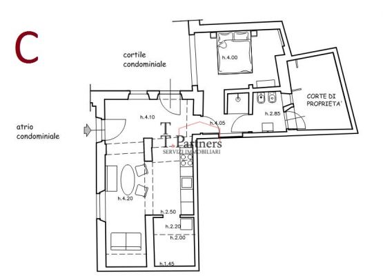
Near Piazza Pitti, in a prestigious 17th-century building with a large entrance hall and high ceilings, we offer a beautiful, fully renovated loft, already furnished, with ceilings over 4 metres high, parquet flooring and high-quality finishes. Independent heating, air conditioning. All certifications for the systems present. Sold by a company. Ideal for rental income or as a base. Prestigious property. REF: T5771 - - - ACE.G IPE.175.Kwh/sqm Tel 055- 26.39.558 Visit our website to see 400 other properties available. www.ttpartnersimmobiliare.com

Share this ad

Details

Property for Vendita
Category Residenziale
Reference T5771
Type Appartamento
Loft / Open Space
Country Firenze
Area Centro Oltrarno / San Niccolò / Santo Spirito / San Frediano
Price 385000 €
Square feet 60
Rooms 1
Bathroom 1
Heating Autonomo
Status nuovo / ristrutturato
Parking space / garage nessuno
Terrace No
Living terrace No
Panoramic terrace No
Garden No
External spaces No
Front/Back yard garden No
Age of construction Moderno
Construction medio signorile
Lift No
Cellar No
Kitchen abitabile
Floor piano terra
Building floors 2
Top floor ? No
Levels 1 livello
Energy classification G
IPE 175.00 Kwh/mq

T&T Partners real estate is specialized for all solutions, real estate sales and rentals of one and two bedroom apartments, apartments in the historic center of Florence, luxury homes and luxury villas

More Informations

TT Partners
Via Carducci, 63/r - 50121 - Firenze (FI)
TEL: 055 26 39 558 - FAX: 055 26 39 558
Email: info@ttpartnersimmobiliare.com


(*) fields marked with an asterisk are required

Name *

Phone *

E-Mail *

Enter your questions here

Privacy treatment

I have read and agree with Privacy Policy*




tt partners immobiliare firenze